Standard process
The creation of a project, from the first meeting with the client to the completion of the work, follows some standard steps. Some of them could be skipped depending on the type of project or the client’s requirement.
- Proposal and Feasibility stage (including survey).
- Architectural drawings for Planning Permission (if required).
- Technical Drawings for Building Warrant (if required).
- Completion Certificate after the construction phase.


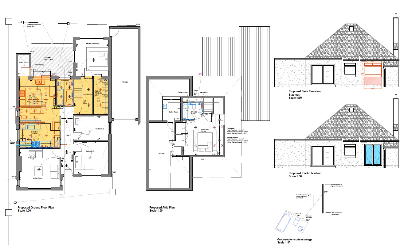
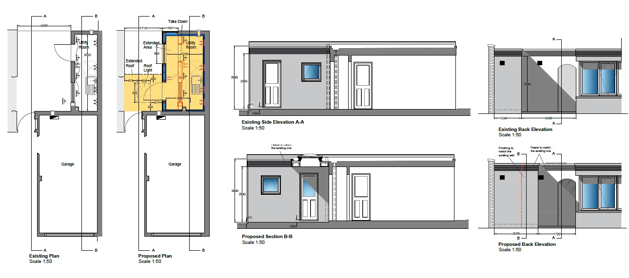
Garage and Attic conversions
Using the space of your attic or garage is a great option to extend your liveable space minimizing the work needed.
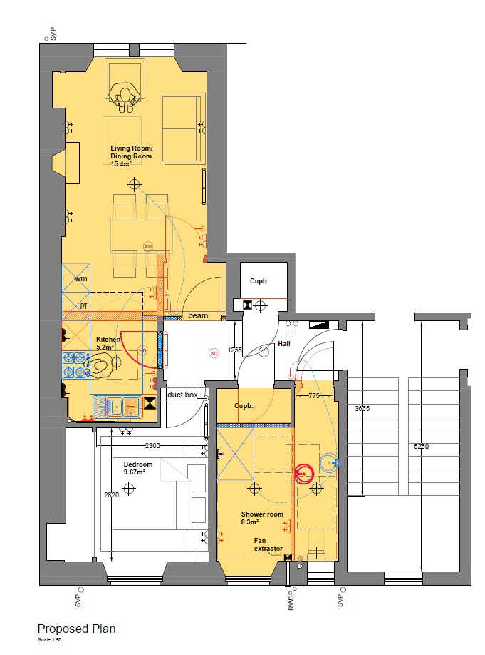
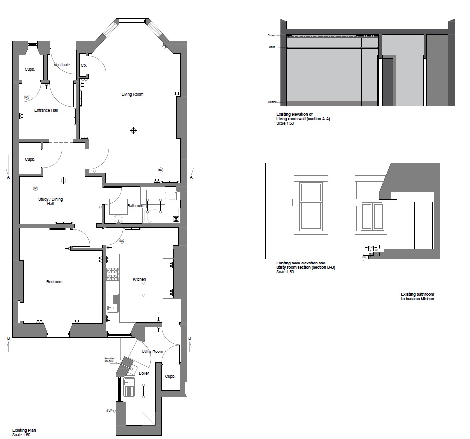
Internal Alterations
A smart reorganization of the internal layout could make a relevant difference, optimizing the existing space.


Home extensions
Sometimes you just want an extra room, which could be either a bright dining area or a new drawing room to host your guests.
Windows replacement
If you are in need to replace the window, you may need Planning permission or a Listed Building Consent.


HMO Compliance
If you want to get the most from your second property, we can make sure it meets the requirements to obtain the HMO license.
Certificate of Lawfulness
Even for the “permitted development” category works, you may want a certificate of lawfulness to demonstrate compliance.

Other professional figures involved
To obtain building approval from the designated authorities when structural works are part of the proposal is necessary to involve a structural engineer. We normally collaborate with a few trusted firms, but we are also happy to work with an engineer designed by the client.
Another figure that might be involved in the project is the service engineer, who provides the calculation for the required U-value, that is the amount of heat transferred through structures. It is an important aspect for new structures as extensions, or conversion of existing unheated spaces that need to meet the requirements.
FAQs
What is your process working in smaller projects?
Bespoken Spaces Design offers comprehensive consulting, management, design, and research solutions. Our vision is to be at the forefront of architectural innovation, fostering a global community of architects and enthusiasts united by a passion for creating spaces. Every architectural endeavor is an opportunity to shape the future.
Who is behind Bespoken Spaces Design?
Bespoken Spaces Design offers comprehensive consulting, management, design, and research solutions. Our vision is to be at the forefront of architectural innovation, fostering a global community of architects and enthusiasts united by a passion for creating spaces. Every architectural endeavor is an opportunity to shape the future.
